Egersund Næringspark Langholmen
Bærekraftig kompetansemiljøLangholmen består av et nytt 8800 kvm kombi-bygg. Området har dypvannskai og treningstårn for vindmølleoperatører
samt mulighet for å bygge ytterligere 3 bygg på tilsammen 10500 kvm
nyoppført næringsbygg
8800 kvadratmeter kombinasjonsbygg med ledig kontorplass
VI SKREDDERSYR AREALET FOR DEG
Vi tilbyr konkurransedyktige betingelser for leie, fleksibilitet og hvor leietaker selv kan få definere arealet etter egne behov. Leiepris vil kunne påvirkes av varighet på avtale, størrelse på- og utforming av areal.
Mulighetene på Langholmen er store. Vi kan skreddersy en løsning etter behov samtidig som vi kan tilby en betydelig fleksibilitet for fremtidige endringer. På Langholmen vil dere bli del av et større leietakerfellesskap med de stordriftsfordeler og synergier det bærer med seg.
GOD LOGISTIKK/ PARKERING
Langholmen har gode parkeringsmuligheter, busstopp rett ved siden av bygget, el-ladere og er i ferd med å etablere bysykkelparkering foran hovedinngang.
GODE FELLESLØSNINGER
Langholmen har stor kantine med utsikt over fjorden, takterrasse, garderobanlegg for de som benytter de varierte treningsområdene i nærheten (eller tar seg en dukkert i lunchen)
DYPVANNSKAI OG TRENINGSTÅRN
Langholmen har eget sjøtreningsområde, lagrings- og havneområde, kai og mulighet for dypvannskai i tillegg til det eksisterende treningstårnet for vindmølleoperatører
KOMPETANSEMILJØ
I bygget er det allerede et veletablert kompetansemiljø innen offshore vind og energi- og miljøteknologi
kontorfellesskap gir gode synergier
kontorfellesskap med alt inkludert
GODE KOLLEGER FRA KOMPETENT MILJØ
Vi opplever at flere av bedriftene som er flyttet inn på Langholmen allerede oppnår gode synergier i våre ulike kontorfellesskap, samt i de ulike felles fasilitetene i bygget.
KONTORFELLESKAP MED ALT INKLUDERT
Vi har kontorlokaler i kontorfellesskapet Langholmen Co-working hvor alle kontorfunksjoner og tjenester inngår.
Vi har god erfaring med å samarbeide med selskaper som ønsker god tilrettelegging og strekker oss langt for å få fornøyde leietakere som opplever at de får merverdi knyttet til å leie hos oss.
MØTE OG STILLEROM
Det er bygget flere store møte- og stillerom av høy kvalitet og leietakerne har selvsagt tilgang til disse. Disse rommene inneholder alle fasiliteter for effektiv og god samhandling.
KANTINE OG TERRASSE TIL DISPOSISJON
Bygget innehar en av regionens fineste kantiner med utsikt som kan ta pusten fra de fleste. Dette i tillegg til en stor takterrasse, gir muligheter for våre leietakere.
Det er eget garderobeanlegg i bygget
FELLESTJENESTER
• Felles nettverk og kaffemaskiner
• Strøm felles- og egne lokaler
• Vask av fellesarealer og kontorområder
• Vaktmestertjenester
• Tilgang til kantine, printer, fellesgarderober, takterrasse, parkeringsplass, etc
egersund energy hub
LEDENDE KOMPETANSESENTER FOR OFFSHORE VIND, miljø- og energi teknologi
SPESIALTILPASSET FOR VINDENERGI
Egersund Energy Hub er en del av Egersund Næringspark Langholmen. Strategisk beliggende midt blant Sør-Norges største vindutbygginger, midt mellom Utsira og Sørlig Nordsjø feltene, med kort sjøvei til Europa og produsentene, satses det nå for fullt. Deler av bygget på Langholmen er spesialtilpasset formålet som kombinasjonsbygg for Norges første senter for drift og vedlikehold, trening og utdanning for vindindustrien.
VERKSTEDHALLER OG TRENINGSTÅRN
De to første etasjene, og verkstedshallene er allerede leid ut til bedrifter som ser konkurransefortrinn gjennom samlokalisering i et sterkt kompetansemiljø innen vindkraft, energi- og miljøteknologi. Det 30 meter høye spesialdesignede treningstårnet er allerede hyppig i bruk til GWO sikkerhetstrening.
Både verkstedshaller og treningstårn har gode sambruksmuligheter for de som ønsker å etablere seg på Langholmen
19 METER HØY VERKSTEDHALL
Den 19 meter høye verkstedhallen skal kunne ta inn turbiner i 4-5 MW-klassen for vedlikeholdsoperasjoner / komponentskift med mulighet for løfteoperasjoner på mer enn 100 tonn.
Vi har fremdeles ledig plass for bedrifter som vil bli en del av landets første senter for drift og vedlikehold, trening og utdanning for vindindustrien
EGET BLADVERKSTED
Det er etablert eget spesialtilpasset Bladverksted i Egersund Energy hub, for Norges første sertifiserde trening for bladrepreatørerer.
Sammen med de øvrige kurs (GWO og andre), utdanner en personell for vedlikehold av de fleste vindparker til lands og til havs.
VIDEREGÅENDE SKOLE
Norges eneste utdanning for vindteknikere, gjennom energioperatørutdanningen for drift og vedlikehold av vind- og vannturbiner ved Dalane videregående skole er etablert i Egersund Energy hub fra skoleåret 2021 / 2022.
ØVINGSOMRÅDER
Det er eget vinmølletårn med simulator, øvningsområde i sjø, HMS og klatretrening i haller. Brannstasjon som er under bygging, vil ha eget øvingsområde for sambruk klart i 2022. Det er også mulig å sette opp en 24 m høy øvningshall med basseng.
INTERNASJONALT MILJØ
En rekke nasjonale og internasjonale aktører er allerede etablert på Lanholmen. Kompetansemiljøet, treningstårn, kaimuligheter og de unike verkstedhallene gjør Langholmen attraktiv.
UTVIDELSESMULIGHETER
Planer FOR ET HELHETLIG KOMPETANSEMILJØ
HOLMEN I FREMTIDEN
Vi har store visjoner og planer for for utvidelse! Trenger du lokaler eller fasiliteter som gir tilgang til miljøet på Langholmen er mulighetene mange!
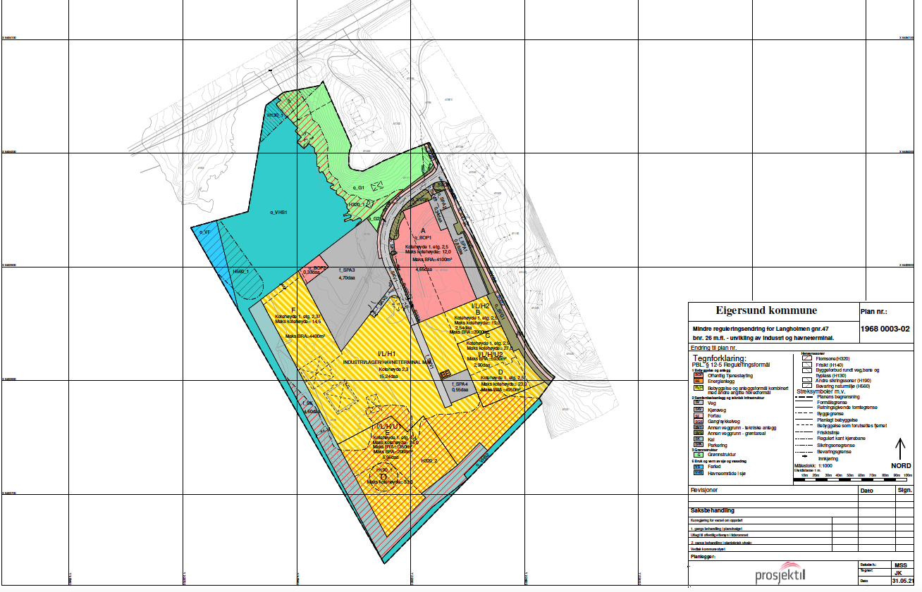
BYGG E - HALL
Regulert formål er industri, lager, havnevirksomhet eller opplæring.
Maks BYA 1350 kvm, maks BRA 2088 kvm, tillat høyde kote +24 (21,6m).
Fleksibel mulighet for plassering enten mot vest eller i forbindelse med ro-ro kai i sør.
Velegnet for en rekke formål. Spesielt tilpasset havnevirksomhet, verksted eller opplæring.
BYGG B - KOMBINASJONSBYGG
Regulert formål er industri, lager, havnevirksomhet.
Byggeområde 2580 kvm, maks BRA 3900 kvm, tillat høyde kote +19 (16,5m).
Velegnet for en rekke formål. Spesielt tilpasset kombinasjon av lager/verksted og kontor.
Har også mulighet for tilkomst fra bakkeplan i 2 etg.
Tilkobles eksisterende bygg, som gir innendørs tilkomst til alle tilgjengelige fellesareal og tjenester, samt sambruksmuligheter med Egersund Energy hub.
BYGG F - KOMBINASJONSLOKALE
Regulert formål er industri, lager, havnevirksomhet.
Fleksibelt byggeområde, maks BRA 4400 kvm, tillat høyde kote +14,5 (12,1m).
Særdeles fleksibelt kombinasjonsbygg som kan ha inntill 25% kontorareal i 3 etasjer.
Velegnet for en rekke formål. Gjerne hovedkontor for logistikk, havnerelaterte, elektronikk eller lettere produksjonsbedrifter, etc.
KAI, LAGEROMRÅDE
To sider av området har sjøfront med gode muligheter for havnerelatert virksomhet.
Både i vest og sør er det muligheter for skip oppad til 130 m along side. I sør er det mulighet for ro-ro kai med skip inntil 130 m.
Det er tilgjengelig ca 15 mål utvendig lager/havneområde.
LANGHOLMEN, EGERSUND
Strategisk plassert MIDT MELLOM VIND-MØLLER til lands og til havs.
STORT KOMPETENT ARBEIDSMARKED
Egersund- og Stavangerregionen har et variert arbeidsmarked, men er spesielt store på industri, bergverksdrift og utvinning. Aker Solutions i Egersund har over 500 fast ansatte og mellom 1500-2000 innleide. Det er store miljø innenfor fiskeri/havbruk og maritim elektronikk i Egersund. Andre store industribedrifter i Egersundregionen er Titania, NorDan og Covent.
Innenfor 60 km er det totalt 170.000 sysselsatte i privat næringsliv og offentlige virksomheter. Mer enn 13.500 av disse er innen industri og 27.000 ansatte finnes innen bergverksdrift og utvinning. Det er olje og gasseventyret i Stavangerregionen som har vært avgjørende for denne utviklingen. 50 år med Oljeindustri har skapt et av Norges sterkeste tekniske kompetanseområder. Denne bransjen snur seg nå om etter miljøvennlige løsninger og nye muligheter.
GODE UTDANNINGSMULIGHETER
Stavanger har eget universitet med en rekke studier, bl.a. ingeniør/ siv.ing.fag og realfag. Teknisk fagskole i Rogaland tilbyr bl.a. studier innen maskinteknikk, automatisering og elkraft.
Dalane videregående skole i Egersund har et bredt og variert utdanningstilbud, bl.a. teknologi- og industrifag og elektrofag. Dalane Utdanningssenter tilbyr videregående opplæring, kurs, fag- og fagskoleutdanninger og høyere utdanning. I Stavangerregionen er det mange videregående skoler å velge mellom.
Ved Egersun Energy Hub på Langholmen det opprettet egen vindkraft og energioperatørutdanning i regi av Dalane videregående skole.
STAMNETTHAVN OG LOGISTIKK
Egersund Næringspark Langholmen ligger i Egersund havn, som er en stamnetthavn, like ved riksveien og med kort avstand til jernbanen og sentrum. Området består av over 40 mål næringsareal, er regulert til industri, lager og havnevirksomhet, er planlagt for å holde høy kvalitet og med velfungerende infrastruktur.
Langholmen ligger like ved havneterminalen på Kaupanes i Egersund havn.
Den internasjonale (ISPS) utskipingsterminalen Kaupanes har et areal på 35 mål og i tillegg har vi ca 10 mål med oppstillingsplass for containere. Vi har følgende havnefasiliteter på Kaupanes:
- 1 dypvannskai med 140m lengde og ca 8,5m dypgående
- 1 dypvannskai (to kailengder) på til sammen 135m lengde og ca 9m dypgående
- 1 RoRo kai 160m lengde og ca 9m dypgående
- I direkte tilknytning til ISPS terminalen ligger Holevika med ca 30 mål tilgjengelig areal for lagring av utstyr.
- Kaiene er dimensjonert for en jevnt fordelt nyttelast på 50 kN/m2 (5 t/m2), fordelt på hele kai flaten, alternativt for en punktlast på 700 kN (70 tonn), fordelt på en lastflate på 1,0 x 1,0 m.
- Kan håndtere containerskip
- Feedermax 3000 containere
- Feeder 1000 -2000 containere
- Small feeder opp til 1000 containere
- Kapasitet på 30 – 40 containere i timen
EGERSUND MED PENDLERMULIGHETER
Egersund er en koselig by med historisk trehusbebyggelse, et flott sentrum med mange nisjebutikker, smakfulle restauranter og caféer og et rikt kulturliv med mange lag, foreninger og festivaler gjennom året. Det bor ca 15.000 innbyggere i kommunen og Egersund er regionsenter for de ca 42.000 innbyggere som bor i nabokommunene. Innenfor én times radius når man ca 330.000 innbyggere.
Den varierte og mangfoldige naturen kan du oppleve på turer i skog, mark og fjell og den flotte kysten er nydelig å oppleve både i båt og til fots.
Med kort vei til Stavanger Lufthavn og gode togforbindelser ved Jærbanen og Sørlandsbanen til både Stavanger, Kristiansand og Oslo, er det lett å komme seg inn og ut av Egersund.
Pendlermulighetene er særdeles gode mellom Stavanger og Egersund. Lokaltog flere ganger i timen gjør det enkelt og rimelig for de 1200 som pendler inn til Egersund og de vel 2000 som pendler ut av kommunen. Her er også gode kollektivordninger mellom togstasjon og større arbeidsplasser.
Stor befolkningsvekst og stadige utbygginger gjør at det er attraktive boområder både i Egersund, Bjerkheim, langs hele Jæren og i Sandnes/ Stavangerområdet.
VARIERT OG ROBUST NÆRINGSLIV
Egersundregionen er i vekst og har et variert næringsliv innen de fleste næringsområdene. Det maritime industrimiljøet med verfts- og fiskeriindustri er blant de største næringene. Egersund havn er en av de største fiskerihavnene i Norge målt i ilandført kvantum fisk, og har flere store proteinfabrikker og fiskemottak. Egersundregionen er en del av Stavangerregionen, som har et allsidig og dynamisk næringsliv kjent for høy verdi- og nyskaping. Næringsstrukturen er dominert av olje- og gassrelatert virksomhet. Oljeselskapene, og en lang rekke underleverandører, har mer enn 45.000 ansatte.
Rogaland er det største industrifylket i landet, og er én av de største kraftprodusentene i Norge. Regionen er også én av de største jordbruksregionene, og er en viktig produsent av kjøtt, melkeprodukter og grønnsaker. Stavangerregionens servicesektor, inkludert reiseliv og turisme, samt finans og offentlig virksomhet, er også stor.
Oppsummert kan vi vise til spennende jobbmuligheter innen bransjer som IT, helse, utdanning, servicebransjen, finans, industri og produksjon, olje og gass, bygg og anlegg, data og teknologi, logistikk og salg.
MULIGHETER FOR BÆREKRAFTIG TRANSPORT
Med de gode og korte forbindelsene mellom industriområdet og logistikk-knutepunktene, vil en kunne drive en effektiv og bærekraftig transport av personell, samt varer ut til kunder i
Europa og verden forøvrig.
Det er også gode kollektivløsninger for arbeidsstyrken, med tog, rutebusser og ekspressbusser.
UNDER EN TIME TIL INTERNASJONAL FLYPLASS
Stavanger lufthavn – Sola er bare en snau times kjørertur fra Langholmen (Når ny 4-felts E39 er klar, reduseres dette ned mot 40 min). Her er det mange internasjonale ruter og meget god innenlands forbindelse.
INDUSTRI- og teknologiKOMMUNEN EIGERSUND ØNSKER nye bedrifter HJERTELIG VELKOMMEN
Godt samarbeid mellom det offentlige og private gir resultater
Egersund Næringspark er eid av Bertelsen&Garpestad og Seabrokers Group, og samarbeider godt med Eigersund kommune og Eigersund Næring og havn om utvikling av næringsområdet.
BERTELSEN & GARPESTAD
Bertelsen & Garpestad AS er et selskap i BG Gruppen som har drevet i entreprenørbransjen siden 1959. I dag omsetter vi årlig for ca 1,2 milliarder, og har 240 ansatte.
Våre største oppdrag består av bygging av vei for det offentlige. I tillegg har vi oppdrag med boring, sprengning og masseflytting i flere steinbrudd, kraftanlegg samt opparbeidelse av boligfelt og næringsareal. Våre oppdrag er fordelt over hele Norge, og vi har lang tradisjon for arbeid ute på anlegg. Men vi utfører også en del oppdrag lokalt. Ingen jobb er for liten, ingen for stor.
Bertelsen & Garpestad AS har sentral godkjenning i tiltaksklasse for de fleste fagområder. Vi verdsetter faglig kompetanse hos våre medarbeidere, i tillegg satser vi også på utvikling av lærlinger. Vårt omdømme skal være basert på gjennomføringsevne og gode løsninger.
Vi er 50% eier av Egersund Næringspark og vil med vår ekspertise og verdier være med å sikre at utbyggingen av området blir gjennomført på den beste måte. Hyggelig internprising fra oss hjelper å gjøre området kostnadseffektivt priset.
SEABROKERS GROUP
Seabrokers Group leverer et unikt og variert spekter av tjenester for våre kunder nasjonalt og internasjonalt. Vi har dyktige medarbeidere innen skipsmegling, eiendomsutvikling, drift av eiendom, fundamentering, Havnekraner, havovervåking, sikker løfthåndtering og autonome kjøretøy og løsninger. Vårt hovedkontor er Seabrokers House i Forusbeen 78 på Forus, i Stavanger. Seabrokers Group er annerledes, og stolt av det – informasjon og kunnskap gjør oss i stand til å operere i våre mangfoldige forretningsområder.
Seabrokers Eiendom eier og forvalter over 210.000m² næringseiendom. Vi er en langsiktig eier, med tro på fremtiden og sterke leietakere. Vi fremstår i dag som en av regionens største private eiendoms-besittere. Dette gir oss fleksibilitet.
Seabrokers Eiendom er 50% eier av Egersund Næringspark. Med våre mangfoldige forretningsområder og spesialkunnskap innenfor eiendom, vet vi hva som skal til for å utvikle næringsområdet på en fremtidsrettet og bærekraftig måte. Vi bistår gjerne bedrifter som etablerer seg med bygging og drift av lokaler og andre tjenester det skulle være behov for.
EGERSUND NÆRINGSPARK
Egersund Næringspark er den formelle eieren av industriområdene på Eigestad og Langholmen. Selskapet er pr nå eid 50/50 av Bertelsen & Garpestad og Seabrokers.
Egersund Næringspark arbeider for å kunne realisere områdene på en bærekraftig måte og tilby og overlate dette i henhold til kundens ønsker
Bare si hva dere lurer på eller ønsker, så skal vi finne en løsning.
Svarskjema - Egersund Næringspark Langholmen
FORDELER VED Langholmen
Langholmen ligger sentralt og har et veletablert kompetanse miljø
Nye kvalitetslokaler
Fleksibelt areal og varighet
Sentralt med god logistikk
Kompetansemiljø og synergier
I Egersund havn
Nærhet til jernbane og flyplass
Utviklingsmuligheter
ALL inclusive kontorfellesskap
Kontakt
Hva kan vi gjøre for deg?
Vi samarbeider godt med våre leietakere og partnere, og tilstreber å oppfylle våre kunders behov.
Har dere spørsmål eller noe dere ønsker å diskutere, så setter vi pris på om dere tar kontakt med oss. Skulle det være noe vi ikke kan svare på stående fot, så finner vi ut av det og kommer tilbake til deg.
Vi ser frem til å høre fra deg!
Rolf Aarthun
Daglig Leder Seabrokers Eiendom
Egersund Næringspark
Mobil: 957 00 394
E-mail








